Corretor
Casa para Venda, Cerquilho / SP
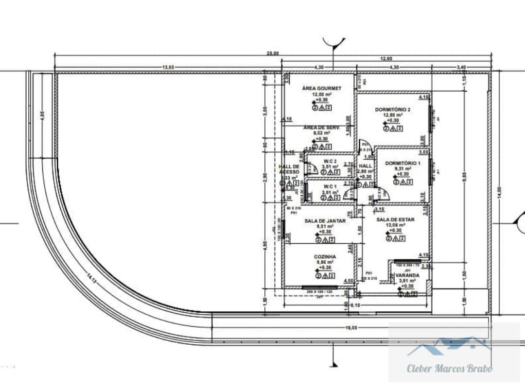
Ref: 015VECA, bairro Portal dos Pilares, 2 dormitórios, 2 banheiros, 3 vagas de garagem, área construída 102,55 m², terreno 332,62 m²Compartilhar:
R$ 740.000
IPTU
66,00
2 Dormitórios
2 Banheiros
3 Vagas
Salas
2
Descrição do Imóvel
Casa Nova à Venda no Jardim Portal dos Pilares, Cerquilho/SP Destaques da Casa: • Arquitetura Moderna e Inovadora: Uma planta que valoriza cada detalhe, com espaços integrados e repletos de luz natural. • Espaços Confortáveis e Elegantes: Sala de estar, sala de jantar integrada com a cozinha , ideal para momentos de convívio e praticidade. Dois dormitórios e dois banheiros com acabamento impecável. Área gourmet com churrasqueira revestida, pronta para reunir a família e os amigos. Área de serviço funcional e garagem para três carros, com portão automatizado. Box e nichos nos banheiros, agregando funcionalidade e um toque de sofisticação ao ambiente. Acabamentos de Primeira Linha: • Pisos e revestimentos em porcelanato de marcas famosas • Esquadrias em alumínio preto com vidro temperado • Porta da sala com fechadura digital e portão social eletrônico. • Portas internas amadeiradas na cor nogueira, com fechaduras IMAB, para um toque de elegância. • Projeto elétrico completo, com pontos para ar condicionado em todos os cômodos e preparação para energia solar. • Louças Celite e metais Deca e Docol, garantindo durabilidade e sofisticação. Quintal Um amplo espaço gramado, ideal para as crianças brincarem e para você relaxar ao ar livre, com a opção de instalar uma piscina e aproveitar ainda mais. Detalhes Técnicos: • Terreno de 332,62 m². • Área construída de 102,55 m². • Garagem coberta com aproximadamente 40,00 m², com espaço para 3 carros. Valor: R$ 740.000,00 Use seu FGTS para facilitar a compra! Além disso, o proprietário estuda permuta por terreno em Cerquilho, ampliando suas possibilidades de negociação. Esta casa oferece mais do que um espaço para morar – é um convite para viver com conforto e exclusividade. Agende sua visita e descubra cada detalhe!
Vídeo
Pontos Fortes
Localização, acabamentos, projeto moderno e valor vantajoso.
Observações
Permuta por terreno.
Mapa de Localização
clique para navegar no mapa
Central de Negócios
Para ter mais informações sobre este imóvel:
(15) 99134-5958
cleberbrabo22@gmail.com
R. da Paineira, 382 - Centro
Cerquilho - SP
Fale agora Conosco
Casa em Cerquilho
Casa
Casa à venda no Real Parque, Cerquilho, SP, 3 quartos Uma casa com o espaço que você precisa, a localização que v...
#012VE
Casa
Sobrado à Venda com piscina no Di Napoli, Cerquilho, SP, possui 3 quartos. Viva com estrutura, estilo e eficiência em um sobrado que une...
#043-VE-CA
Casa
Casa à venda no Centro de Cerquilho, possui 3 quartos, sendo 1 suíte, escritório, quintal enorme e localização priv...
#030-VE-CA
Casa
Admirável casa à venda no Parque das Árvores, Cerquilho, SP. Possui 3 quartos, edícula Para quem busca uma virada na vi...
#055-VE-CA
Casa
Casa à venda no Città Bellucci, Cerquilho, SP, 3 quartos, piscina, gourmet Funcional, bem distribuída e com áreas que a...
#037-VE-CA
Casa
Casa e Salão Comercial à Venda no Bairro São José – Cerquilho/SP Você busca unir qualidade de vida e oportuni...
#103-VE-CA








































